1)为设计院提供的咨询服务
a)协助制定 BIM实施规划
b)建立 BIM协同设计流程及标准
c)企业级的族库及管理体系

橱柜族(三维、立面、平面)
d)全专业施工图出图

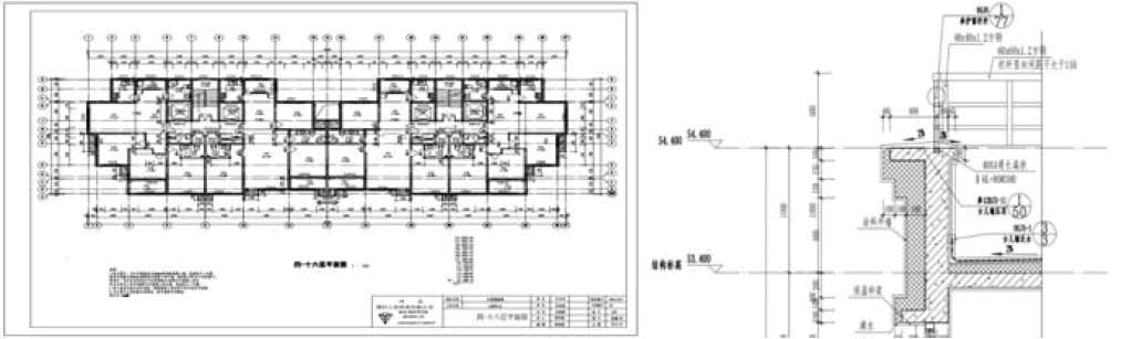
平面及大样图
e)设计查错
2)为施工企业提供的咨询服务
a)协助制定 BIM实施规划
b)建立 BIM协同实施流程及标准
c)企业级的族库及管理体系

电动内螺纹二通球阀族
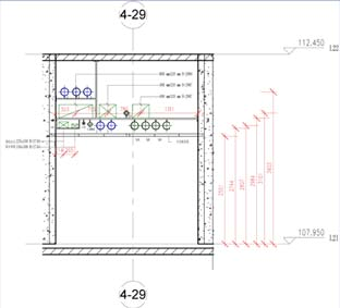
d)管线综合深化图用于指导施工及图纸会审

管线碰撞问题
e)机电安装图及预留空洞图

复杂节点预留空洞图 复杂节点管总定位图 电动内螺纹二通球阀族
f)施工模拟(场平布置、方案优化、工艺/工序模拟))


场平布置方案优化(深基坑)
g)工程量统计(与国家 2013分部分项清单编码相符)
h)竣工模拟及竣工图
3)为业主提供的咨询服务
a)以上为设计院和施工企业提供的服务
b)净高检测
c)建立企业内部或分包(设计、施工)BIM实施流程及标准
d)企业级产品库(LOD500)
e)BIM设计/监理服务
f)竣工信息模型模型用于项目运维
回复:建议参基础系列课程,稍后会有工作人员与你联系!
回复:建议参基础系列课程,稍后会有工作人员与你联系!
回复:目前有安装精英班是在周一到周五上课,稍后会有工作人员与你联系!
回复:稍后会有工作人员与你联系,并针对你的情况推荐合适你的课程!
回复:稍后会有工作人员与你联系!
回复:稍后会有工作人员与你联系!
回复:023-67675845 可咨询
回复:我已转交负责人,明天给你回话。谢谢!
回复:暂时没有
回复:可以QQ直接与我们联系或电话:023-67675845
回复:感谢
回复:感谢
回复:不是的,具体请咨询我们这边负责人电话
回复:有的,具体内容见网站内容
回复:感谢这位同学,我们会及时与你取得联系
回复:欢迎来电咨询